; ;
 
0,00 €
Sie haben keine Artikel im Korb.

Richard Coray (1869-1946), Leben und Werk

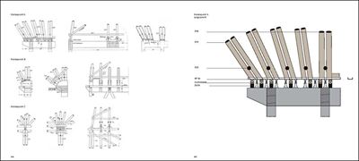
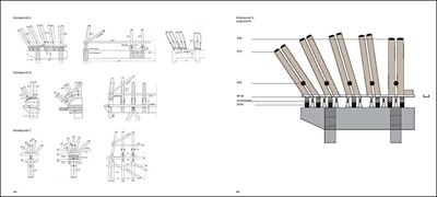
Lehrgerüste für Brücken und Viadukte
Artikelnr.: 209431
Autor/Hrsg. Conzett, Jürg / Clopath, Johann
Artikeltyp Titel
Autor(en) Conzett, Jürg / Clopath, Johann
Erscheinungsjahr 2024
Auflage 2. Auflage
Seiten 504 Seiten, 380 s/w. und 43 farb. Abbildungen, Pläne und Zeichnungen
Format SCHUBER 31 x 28,5 cm
Produktart Bücher
Verlag Scheidegger & Spiess
AktVKPreisNettoManuell 71,96
AktVKPreisNettoUSDManuell 80,5
ISBN/ISSN 9783039420452
ISBN_MitManuell 978-3-03942-045-2
AktuellSubspreisManuell Nein
HasMarktschreierInfoManuell Nein
Die Brücken der Rhätischen Bahn über die Bäche und Flüsse Graubündens sind weltberühmt. Die waghalsigen Konstruktionen beispielsweise der Viadukte von Solis, Wiesen und Langwies sind Reiseziele für Eisenbahnfreunde und Bauingenieurinnen aus zahlreichen Ländern. Die zu ihrem Bau erforderlichen Lehrgerüste hat der aus dem bündnerischen Trin stammende Zimmermann, Techniker und Brückenexperte Richard Coray (1869-1946) entworfen, dessen Name bereits vor hundert Jahren in Fachkreisen weltweit ein Begriff war. Dieses Buch ist nun die längst überfällige grosse Hommage an diesen Grossmeister des Ingenieurbaus, die sein Schaffen auch einem breiteren Publikum nahebringen will.Biografische Kapitel zeichnen den Lebensweg Corays vom Bauernsohn zum Gerüstbauer von Weltruf nach. Vor allem aber dokumentiert der Band in Hunderten von historischen Fotografien, Plänen und Dokumenten den Bau, die konstruktiven Grundtechniken und die oft abenteuerlichen Umstände, unter denen Corays Lehrgerüste und Seilriesen als - naturgemäss ephemere - Meisterwerke des Brückenbaus entstanden sind. Neben den Gerüstbauten für die Rhätische Bahn zählen dazu insbesondere auch das Gerüst für die legendäre Salginatobelbrücke (1929) im Prättigau, aber auch zahlreiche weitere in der Schweiz, in Montenegro und Kleinasien. Eine Galerie mit Bildern von akribisch nachgebauten Modellen von Corays atemberaubenden Gerüsten führt deren ungebrochen anhaltende Faszination vor Augen.

Sicherheitshinweis:
Scheidegger & Spiess
GVA Gemeinsame Verlagsauslieferung Göttingen
GmbH & Co. KG
P.O. Box 2021
37010 Göttingen
info@gva-verlage.de
 
77,00 €
inkl. MwSt. und Versand nach Deutschland* ab € 50 Warenwert. 
Lieferzeit: 2-5 Werktage*
Benutzer, die diesen Artikel gekauft haben, haben auch gekauft

Sichtachsen in Parks und Städten Deutschlands

35,00 € inkl. MwSt. und Versand nach Deutschland* ab € 50 Warenwert. 
Art.-Nr. 210113
Lieferzeit: 2-5 Werktage*

Aluminium im Konstruktiven Ingenieurbau

59,00 € inkl. MwSt. und Versand nach Deutschland* ab € 50 Warenwert. 
Art.-Nr. 209902
Lieferzeit: 2-5 Werktage*

Licht

Meine Erkenntnisse
Meine Erkenntnisse
79,95 € inkl. MwSt. und Versand nach Deutschland* ab € 50 Warenwert. 
Art.-Nr. 209493
Lieferzeit: 2-5 Werktage*
Beliebte Begriffe